新年好哇艾瑞巴蒂!
原地过年的休闲假期,随时随地在广阔的赛博瓜田里冲浪,前阵子热搜看到的“农村豪宅”一直没来得及细看,终于有空扒拉一遍。
——好家伙,看完各地农村自建房,我直呼好家伙!
又野又土
是为别“墅”
农村自建豪宅一大代表派系——福建,特点是赤诚单纯,别的没啥,主要是阔。


来源:网络
如果不是我主动搜索的福建豪宅信息,没准儿以为是唐顿庄园风格影视城,一颗罗汉松都够北京买2平米

来源:网络
这种“别墅”我宁可称它为一栋大厦,只要房子够高,不临海也能有海景阳台。

来源:网络
光是高也不够,占地要大、院子要宽,不然过年回家的玛莎拉蒂们都没地儿停。

来源:@农村阿举
通体干挂石材、高高低低全是罗马柱的端庄款,好不好看是次要,层层高升我get到了,满眼都写着钱


来源:网络
也有当代设计师出品的混搭·现代新中式,大庭院大花园大鱼池,要不是院墙上的中式纹路窗格,说这是北美随手拍我也信


来源:网络
甚至能在农村天际线里发现穹顶的影子,宏伟属于罗马,也属于福建人家,我愿称之为闽式浪漫

来源:网络
害有继往开来式作品——闽南古厝嫁接在西式建筑顶部,没办法,劳动人民就是有复杂的审美情趣,有钱的劳动人民只会更复杂。

来源:网络
内饰上,显贵欧陆风和显贵中式红木风是绝对的双顶流。
8米挑高大堂屋在别墅是标配,不挂上2米长的水晶吊灯似乎就白瞎了这层高

喜欢养鱼搞鱼池,喜欢娱乐加KTV,更不用说“不可一日无茶”的福建人,茶室也是刚需

俗话说,福建人不露富,都在老家盖别墅。
“探大钱(赚大钱),起大厝(盖大房子),娶水某(娶漂亮妻子)”,听过这通俗直白的成功学俗语,就能看出来盖大房子对福建老乡有多重要。
一个早晨,我的福建朋友小林从他法国田园风的碎花十六件套中醒来,在欧陆风卫生间洗漱后,离开地中海阳光二楼,前往维多利亚风情客厅准备打一会儿羽毛球。

你觉得我是阴阳怪气讽刺小林?我想挑剔合院采光不够、混搭欧式审美不行、房子那么大自己住着都害怕?
——不是,我想说,我可以。
新中式农村标杆
如果福建豪宅单纯的贵气打动不了你,各平台热搜的浙江农村豪宅申请出战。
联排别墅在这里都是洒洒水,我总结浙江农村小别墅突出的两大特色:中式风、民宿多。
来源:@蜗得天
来源:良工10
可能是因为江浙地区古镇、古村落多,保存比较完好,当地人世代熏陶出了更细腻的中式审美,现代农村也多见新中式。

白墙黑瓦,飞檐翘角,就叫一个宁静轻盈,远看就是印象中安徽浙江传统民宅的崭新版本。


老宅改建
来源:@味甘苦各半27872
拉个近景,有梁有柱,中式格栅、坐凳楣子、倒挂楣子,中式装饰细节讲究的就是个剔透层次感:

我还发现了很有趣的素材库——各乡镇的官方发布,地方政府统一规划的“美丽乡村”,他们的目标是公共设施齐备、硬化路面干净,更是一村一景

“安吉发布”发布的安吉县鹤鹿溪村
航拍看到的成片房子都是同样制式,基本都是统一规划或新建的回迁房,比如浙江著名的东阳花园村:
在设计圈火过一波的回迁房东梓关村,不仅有宏观的连绵起伏水墨风景,还有家家朝南、独户小院。

社交平台各位凡学达人晒出来的外婆家、老公家也不乏审美在线案例:


当然,迪士尼在逃城堡还是不可或缺的豪宅制式。



来源:网络
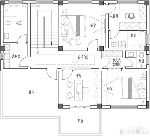
比起外观,说真的我更关心户型咋样、住起来爽不爽(当然爽……)
于是我从近几年逐渐火起来的“乡墅”设计中找了个浙江案例,普普通通70万框架小三层6室1厅8卫,这数字都让北京蜗居人肃然起敬。
一层宽敞大门厅,以公共区域为主,免去上下楼的老人房安排在这大卧室
二层居住休闲,每间卧室配置齐全,跟酒店没差,而且起床就能打麻将
三层超大间豪华套房,妥妥是主人享用,敢拿出一间客厅面积做露台的家庭,才是大户人家

冲浪看到有人吐槽,这种新中式“不自然”,赠他们著名尖酸刻薄大艺术家王尔德名言:艺术之所以为艺术,就是因为它不自然,微笑.jpg
毕竟审美是很个人的事情,不美不代表别人不能选择,看到同胞住得越好越好,我只有高兴羡慕。

墓地界的比弗利山庄
一看豪宅就停不下来,赛博大数据循着我的蛛丝马迹推送了更神奇的豪宅——菲律宾华侨义山,就是墓地。
别怕,没有突然换台,还是猎奇豪宅系列。


以前去潮汕的时候,专门参观过当地著名的华侨老宅陈慈黉故居,占地2.56万平方米,共有厅房506间,标准的“驷马拖车”格局,全族合居。
比尔盖茨看了都直呼好家伙,毕竟他家才6000多平。

来源:中国国家地理
据说当年光是关窗户就需要雇一个专门的负责人,早上开窗、下午关窗,一遍走下来,天就黑了。
由此可见,东南沿海尤其是潮汕华侨,真的爱起大厝,话说回菲律宾墓地——生死都要有大厝。
这在当地是个景点,旅游网站上的注脚是:豪华人少,推荐来玩,有点crazy。


根本没有想象中的阴森感觉,看过去就是花园别墅亭台楼榭:


还是那种横跨五大洲、纵贯几千年,不同建筑风格拼盘。
前苏联元素墓地隔壁就是方尖塔,上次感受这种混合冲击还是在深圳世界之窗、北京世界公园。



甚至他们也没有宗教的隔阂,都可以比邻而居,生前信哪个宗教不重要,身后都是一样的peace&love
最关键的是,很多墓地适配了现代化起居设备,有客厅厨房卧室洗手间,现代家电样样俱全,也有wifi。
后代直接住下的有,流浪汉拎包入住的有,出生成长在当地的“原住民”也有。


这里的保安部队,日常主要工作就是驱逐流浪汉,和参观赏心悦目的墓园。
“养生者不足以当大事,惟送死可以当大事”,孟夫子箴言生死大事,感觉他们吃的透透的。

这些华侨前辈或许是做生意下南洋、或许是打仗没回来,当工作人员介绍说,作为极其讲究风水广东、福建人,这座墓园却每一间都统一朝着祖国的方向
—— 没想到天天看豪宅,差点哭出来的原因竟不是羡慕。
今年的看豪宅来得有点早,还勾起了家国情怀及些许乡愁,倒不如赶个好彩头吧:
初二看别墅,必有豪宅住!
点个赞,祝福你的豪宅早一天到来~
